Sử dụng nhà bê tông đúc sẵn V05B tạo biệt thự siêu đẹp - anh Tính
Với xu hướng xây dựng hiện đại hiện nay, nhà bê tông đúc sẵn đang ngày càng nhận được sự ưa chuộng nhờ tính bền vững, tốc độ thi công hoàn thiện nhanh chóng và linh hoạt trong thiết kế và hoàn thiện. Một trong những ví dụ điển hình là cách sử dụng 04 modules nhà bê tông đúc mẫu V05B-ABL đã được sản xuất sẵn tại nhà xưởng, sau đó lắp dựng theo thiết kế để tạo không gian sử dụng đáp ứng được đầy đủ nhu cầu. Với kích thước của từng modules là dài 5,8m; rộng 3,5m và cao 3,28m, ABL đã kiến tạo nên biệt thự nghỉ dưỡng với không gian tiện nghi và mang phong cách kiến trúc hiện đại. Hãy cùng chúng tôi tìm hiểu chi tiết qua mẫu thiết kế này.

Thiết kế kiến trúc biệt thự từ 04 modules nhà đúc sẵn V05B.

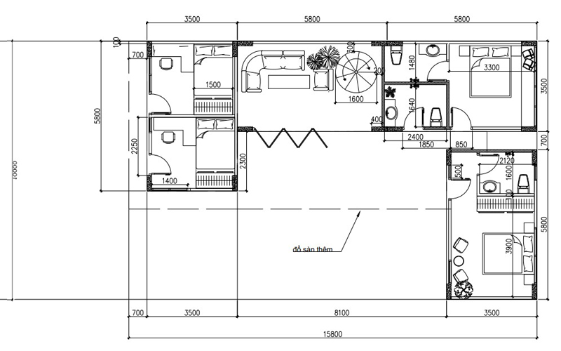
Mặt bằng công năng biệt thự.
Nơi để xe rộng rãi và tiện dụng
Toàn bộ phần móng được thiết kế để đổ trụ bê tông chắc chắn, tạo tầng trệt thoáng đãng, bạn đã sở hữu ngay một bãi đỗ xe rộng rãi. Đây là giải pháp không chỉ mang đến tính công năng trong quá trình sử dụng mà còn góp phần nâng tầm thẩm mỹ cho công trình, mang đến sự tiện nghi như một biệt thự cao cấp.
Tầng trên – không gian sinh hoạt chính đầy đủ và tiện nghi
Bằng cách sử dụng 04 modules V05B (mẫu nhà bê tông đúc sẵn dạng lắp ghép), khu vực sinh hoạt chính được thiết kế thông minh, cân đối giữa tính công năng và vẻ đẹp thẩm mỹ. Bố cục cụ thể như sau:
- Phòng khách: là trung tâm kết nối của cả gia đình, nơi sinh hoạt chung rộng rãi và hiện đại;
- 4 Phòng ngủ riêng biệt, đáp ứng nhu cầu sử dụng cho 5 thành viên mà vẫn giữ được sự riêng tư cần thiết;
- 3 phòng vệ sinh tiện ích gồm: 1 phòng cho phòng ngủ master, 1 phòng cho phòng ngủ con gái và 1 WC dùng chung cho cả gia đình và khách.
Đây là cách bố trí giúp tạo nên một không gian sống tiện nghi, phù hợp cho các gia định có nhiều thành viên.



Hình ảnh thiết kế kiến trúc biệt thự từ nhà bê tông đúc sẵn.
Nhà bê tông đúc sẵn thiết kế biệt thự nghỉ dưỡng với cầu thang xoắn ốc
Một trong những điểm nhấn đặc biệt của mẫu biệt thự từ nhà bê tông đúc sẵn là sử dụng cầu thang xoắn ốc – vừa giúp tiết kiệm diện tích, vừa tạo nét kiến trúc hiện đại. Thiết kế mang đậm nét đẹp của biệt thự nghỉ dưỡng cuối tuần, đã biến căn nhà này trở thành một điểm nhấn độc đáo, vừa sang trọng, vừa thoáng đãng và mang lại một trải nghiệm sống mới mẻ.



Tầng trệt thoáng đãng, công năng.
Bếp riêng theo nhu cầu sử dụng của khách hàng
Nhằm đảm bảo sự linh hoạt trong quá trình sử dụng, khu vực nhà bếp sẽ do khách hàng tự đảm nhiệm xây dựng, căn biệt thự được tạo nhà bê tông đúc sẵn lắp ghép này giúp khách hàng sở hữu cơ hội cá nhân hoá, biến nó trở thành một dấu ấn độc đáo mang cá tính riêng của chủ nhân.
Giải pháp hoàn hảo cho cuộc sống hiện đại với nhà đúc sẵn
Bằng sự kết hợp giữa các cấu kiện bê tông đúc sẵn dạng lắp ghép, thiết kế khoa học và sự linh hoạt trong quá trình xây dựng, căn biệt thự này không chỉ đáp ứng nhu cầu sinh hoạt cho cả gia đình mà còn mang lại giá trị thẩm mỹ cao, xứng đáng là không gian nghỉ dưỡng hiện đại trong chính ngôi nhà của mình.
Hình ảnh thiết kế nội thất biệt thự


Nội thất phòng khách.




Thiết kế phòng ngủ master.




Thiết kế phòng bé gái.


Thiết kế phòng ngủ bé trai.


Hình ảnh thiết kế nhà vệ sinh dùng chung.
Liên hệ ngay Công ty cổ phần ABL - Vạn Phúc nếu bạn đang có nhu cầu sử dụng nhà bê tông đúc sẵn để xây dựng cho không gian của mình. Hotline 0983291388 - Chúng tôi luôn sẵn sàng hỗ trợ!












